PROJEKTE

plan2

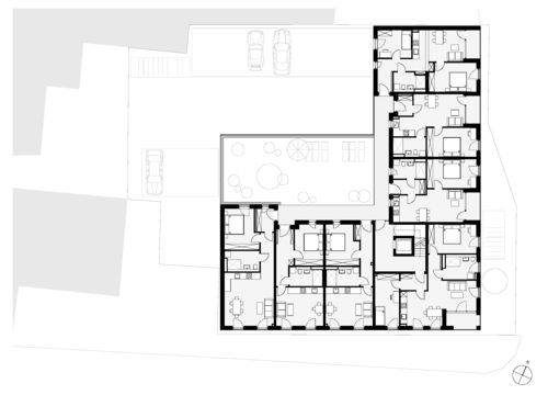
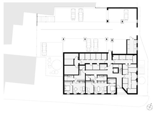
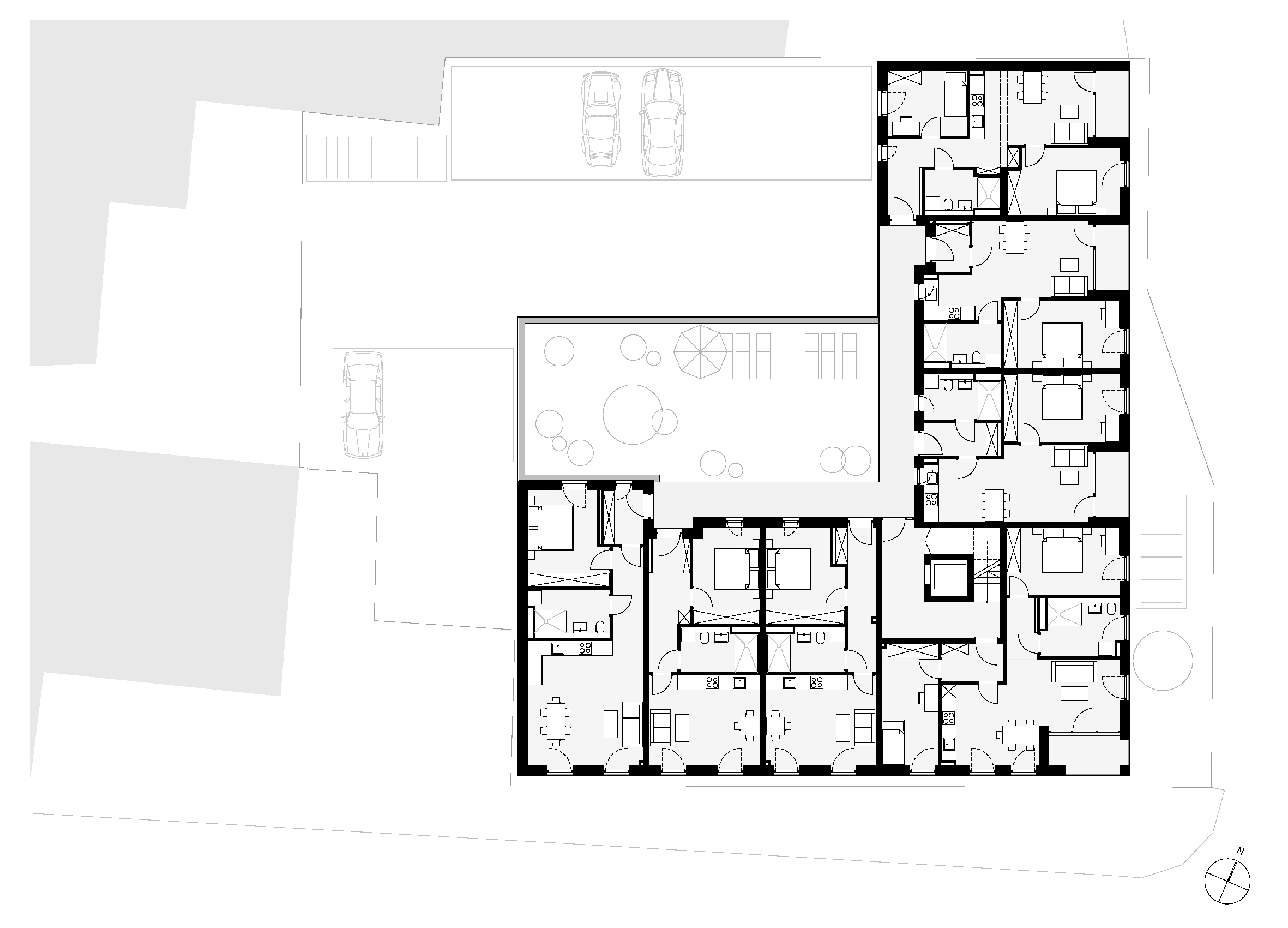
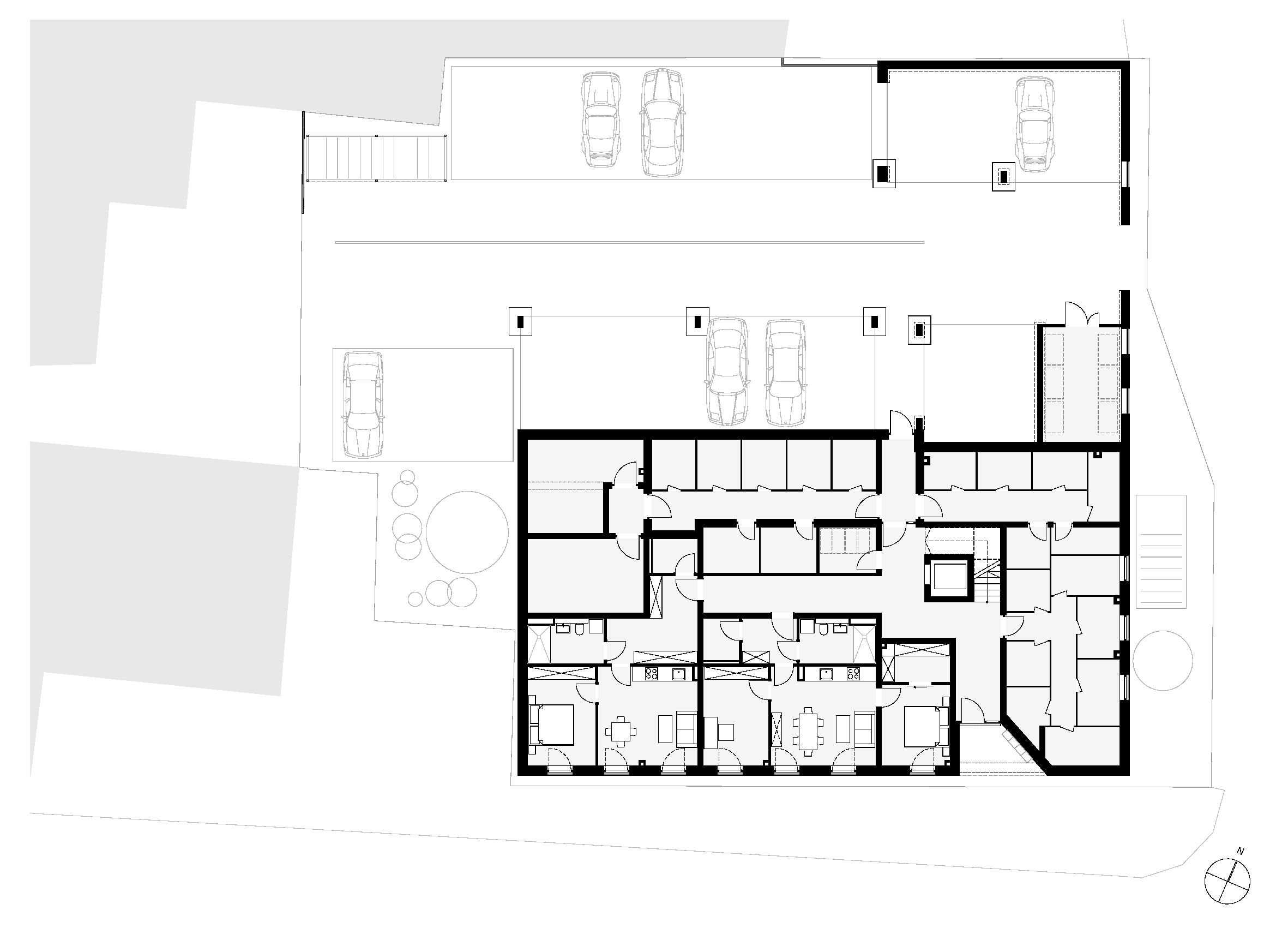
Neubau eines Mehrfamilienhauses mit 22 WE

Anstelle eines abgebrochenen Brauerei-Gebäudes inmitten der niederbayerischen Marktgemeinde Frontenhausen sollte ein Mehrfamilienwohnhaus mit Tiefgarage realisiert werden. Nachdem eine bereits bestehende Planung nicht realisierbar war, beauftragte uns der Bauherr mit der Neuplanung.

Das neu geplante, L-förmige Wohngebäude mit 22 Wohneinheiten wurde als klimafreundliches Wohngebäude mit dem Qualitätssiegel Nachhaltiges Gebäude (QNG) geplant.

Städtebaulich bildet der Baukörper die Raumkanten zu den anliegenden Straßen und bildet einen Innenhof aus. Zur zentralen Bahnhofstraße hin wird die Loch-Fassade durch einen traufseitigen und einen giebelständigen Teil gegliedert. Die Gestaltung bleibt bewusst zurückhaltend, um die stuckverzierte Fassade des denkmalgeschützten Nachbargebäudes nicht zu beeinträchtigen.

Die Vorgabe des Bauherrn, aufgrund der beengten baulichen Situation das Gebäude ohne Tiefgarage zu planen, stellte uns bei diesem innerstädtischen Grundstück vor eine besondere Herausforderung. Unser Ziel war es, die Stellplätze so zu organisieren, dass diese von der zentralen Bahnhofstraße her nicht in Erscheinung treten. Eine Teilüberdachung der Stellplätze ist als Gründach konzipiert und bietet den Bewohnern eine kleine innerstädtische Grundfläche zum Verweilen an.

Frontenhausen I 01-2024 bis 03-2025 I LPH 1 bis 4

Planung

Visualisierung

Zurück

Einstellungen gespeichert
Datenschutzeinstellungen

Cookie-Hinweis: Wir setzen auf unserer Website Cookies ein. Einige von ihnen sind erforderlich, während andere uns helfen unser Onlineangebot zu verbessern. Sie können alle Cookies über den Button “Alle akzeptieren” zustimmen, oder Ihre eigene Auswahl vornehmen und diese mit dem Button “Auswahl akzeptieren” speichern.

Essenzielle Cookies ermöglichen grundlegende Funktionen und sind für die einwandfreie Funktion der Website erforderlich.

You are using an outdated browser. The website may not be displayed correctly. Close